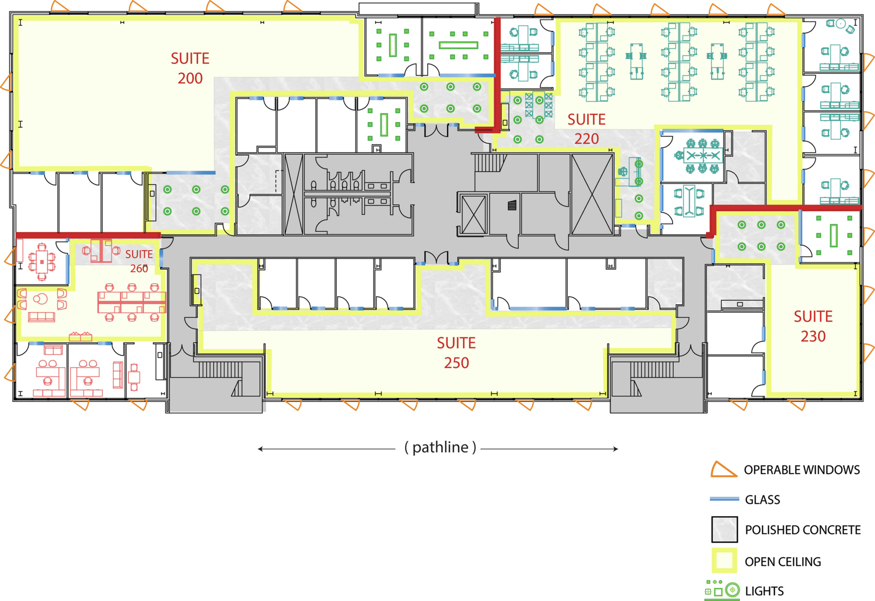
Suite 260
150 Progress | Irvine, CA
Innovation Office Park
- Total Size 2,099 sqft
- Team Size about 9 people
- Status Currently Leased
Join fellow innovators in this corner suite ideal for a small team with two private offices, a meeting room, a break area, room for six workstations and open collaboration areas. The creative space features polished concrete floors, an open ceiling and operable windows.




