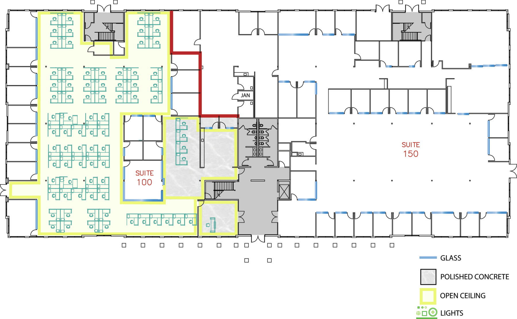
Suite 100
7525 Irvine Center Drive | Irvine, CA
Irvine Business Center
- Total Size 13,790 sqft
- Team Size about 61 people
- Status Currently Leased
Suite 100 is fully furnished with 11 private offices, three meeting rooms, individual workstations and an enclosed break room with communal seating. Noteworthy features include bright accents, an open ceiling and polished concrete flooring.




