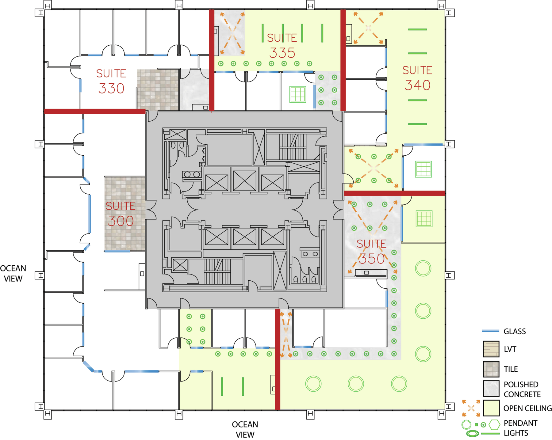
Suite 340
610 Newport Center Drive | Newport Beach, CA
610 Newport Center Drive
- Total Size 2,494 sqft
- Team Size about 11 people
- Status Currently Leased
This new corner suite features floor-to-ceiling views from perimeter private offices and modern finishes throughout. As an added advantage, Pacific Arts Plaza’s collection of time-saving conveniences drive productivity.





