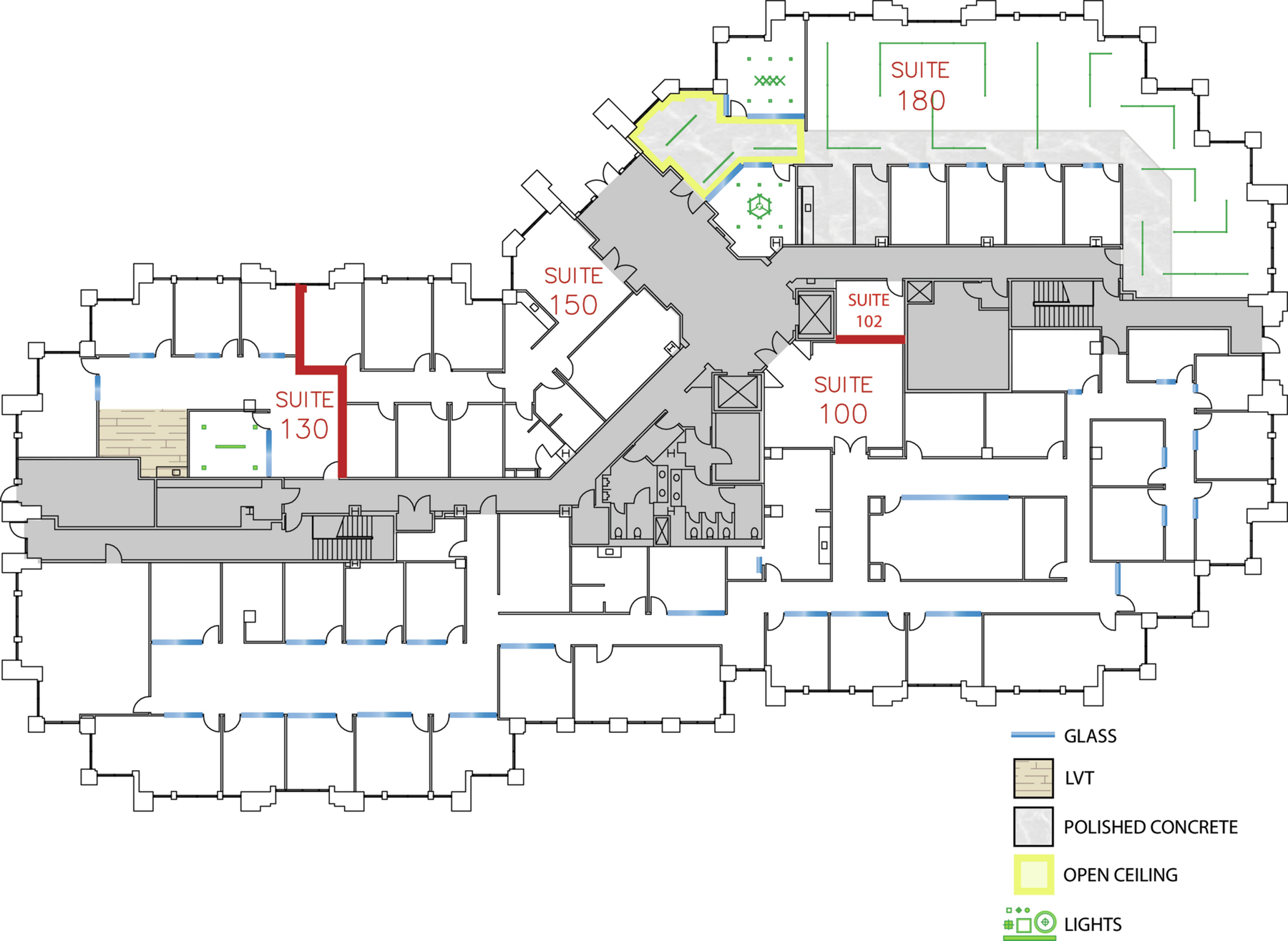
Suite 130
888 San Clemente | Newport Beach, CA
888 San Clemente
- Total Size 2,206 sqft
- Team Size about 10 people
- Status Currently Leased
Discover a brand new, ground floor Flex+ workspace. Suite 130 offers perimeter private offices and collaboration areas with the added advantage of being steps from Newport Center’s collection of amenities.




