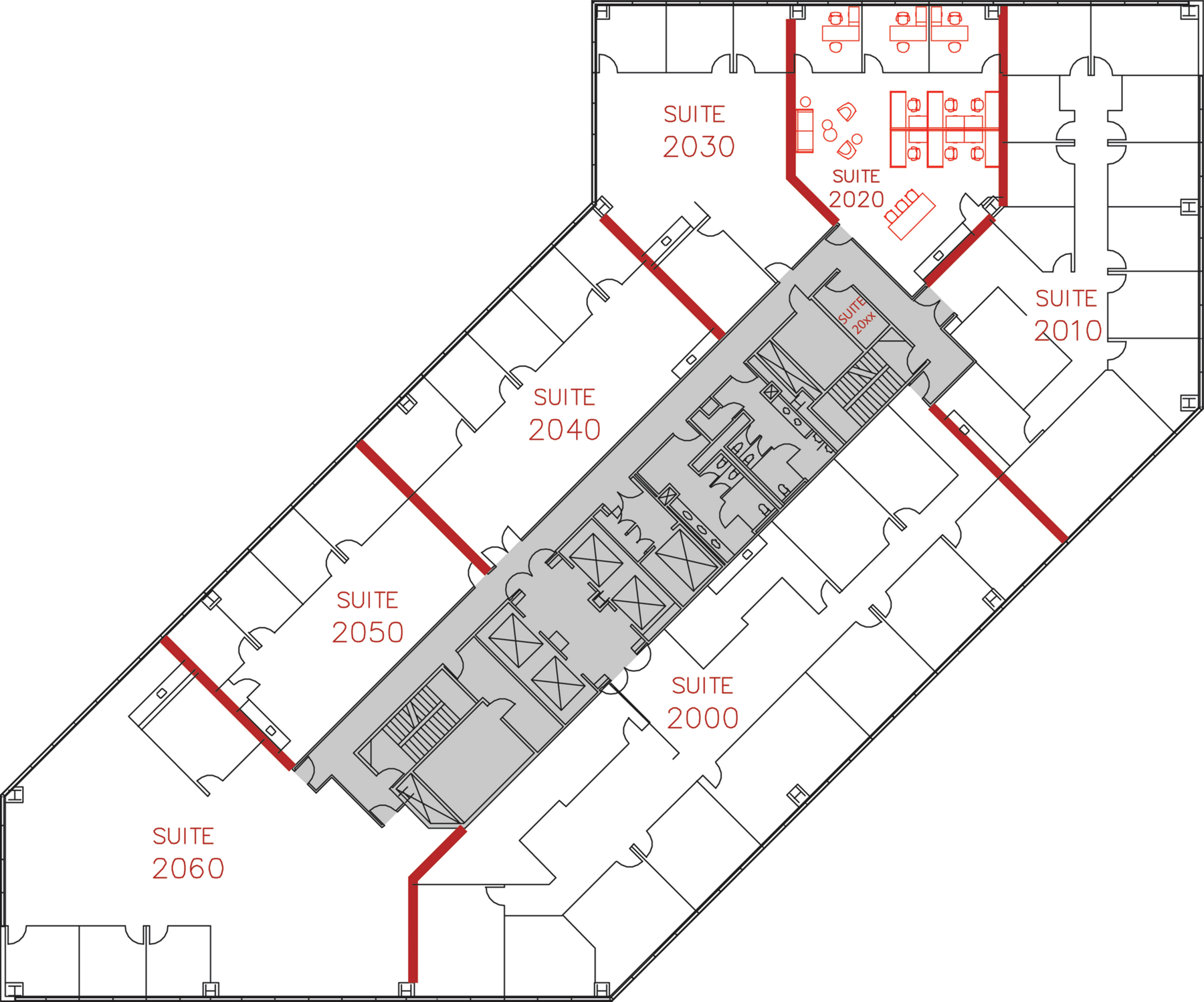
Suite 2020
401 B Street | San Diego, CA
Wells Fargo Plaza
- Total Size 0 sqft
- Team Size about 0 people
- Status Currently Leased
Support the success of your growing team in a premier downtown tower with robust on site amenities. The suite features an open kitchen, perimeter private offices, open space and skyline views.




