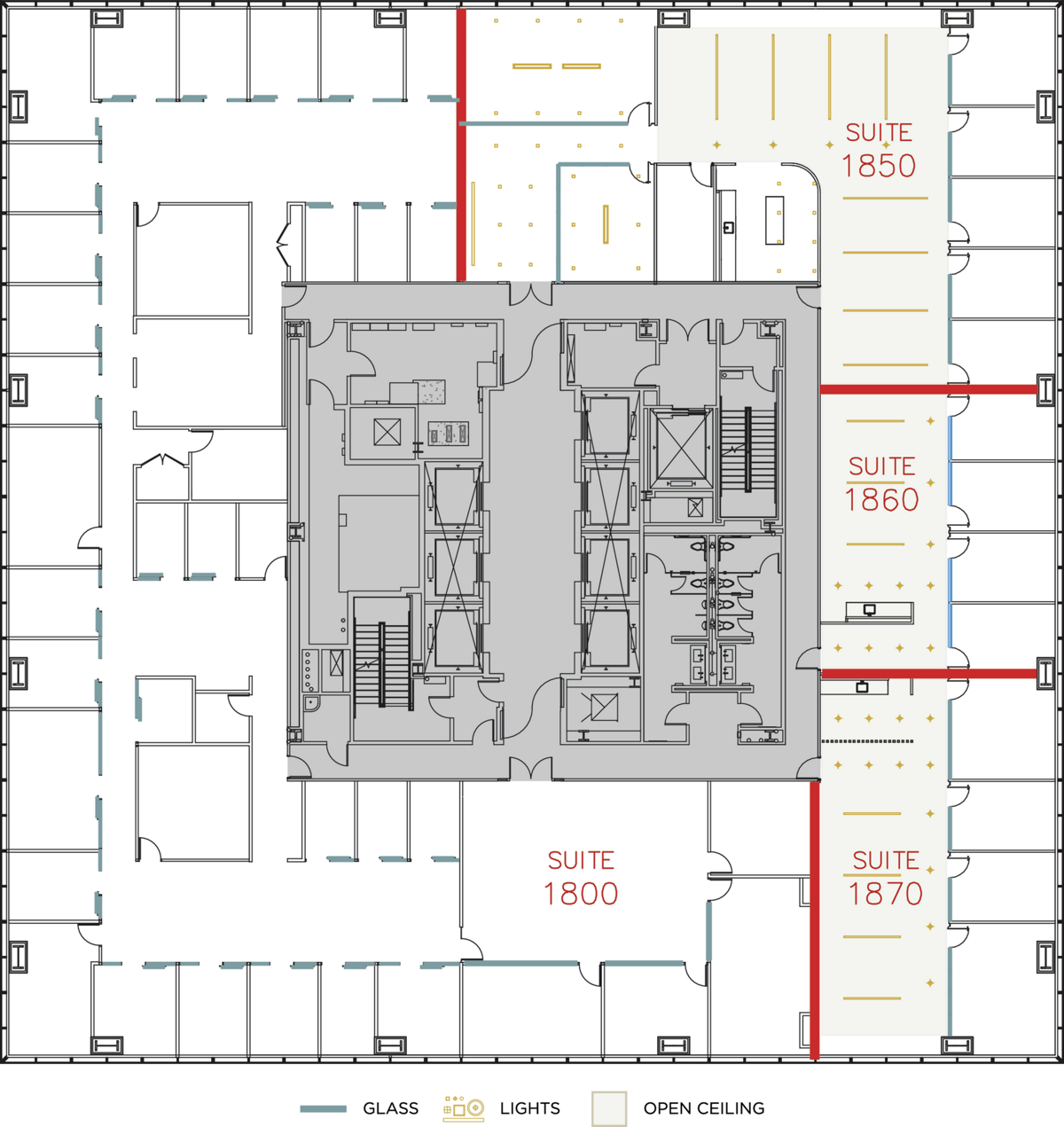
Suite 1870
200 Spectrum Center Drive | Irvine, CA
200 Spectrum Center
- Price Contact Us
- Total Size 2,482 sqft
- Status Lease Pending
With noteworthy features that include polished concrete flooring, an open ceiling and modern lights, the newly refreshed suite offers ample room for 14 employees with three private offices, a meeting room, a break area and open floor space.




