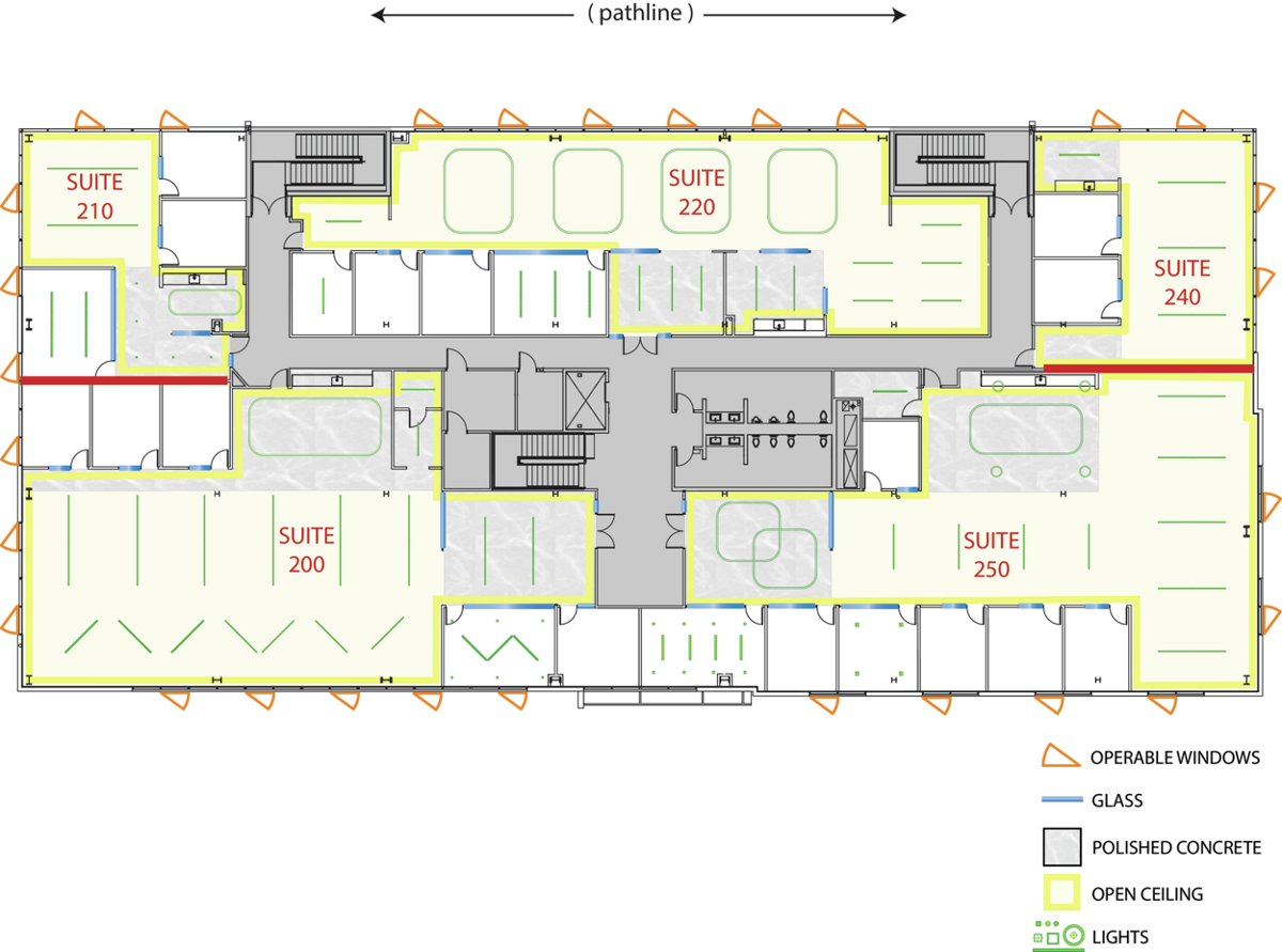
Suite 200
210 Progress | Irvine, CA
Innovation Office Park
- Total Size 6,625 sqft
- Team Size 30-38 people
- Status Currently Leased
Suite 200 is a creative space featuring ample open workspace for small to medium sized teams. This move-in ready suite includes polished concrete floors, operable windows, modern finishes and access to on-site amenities.
 
		 
			 
					 
					 
					 
					 
					 
					 
					 
					 
					 
					 
			



 
										