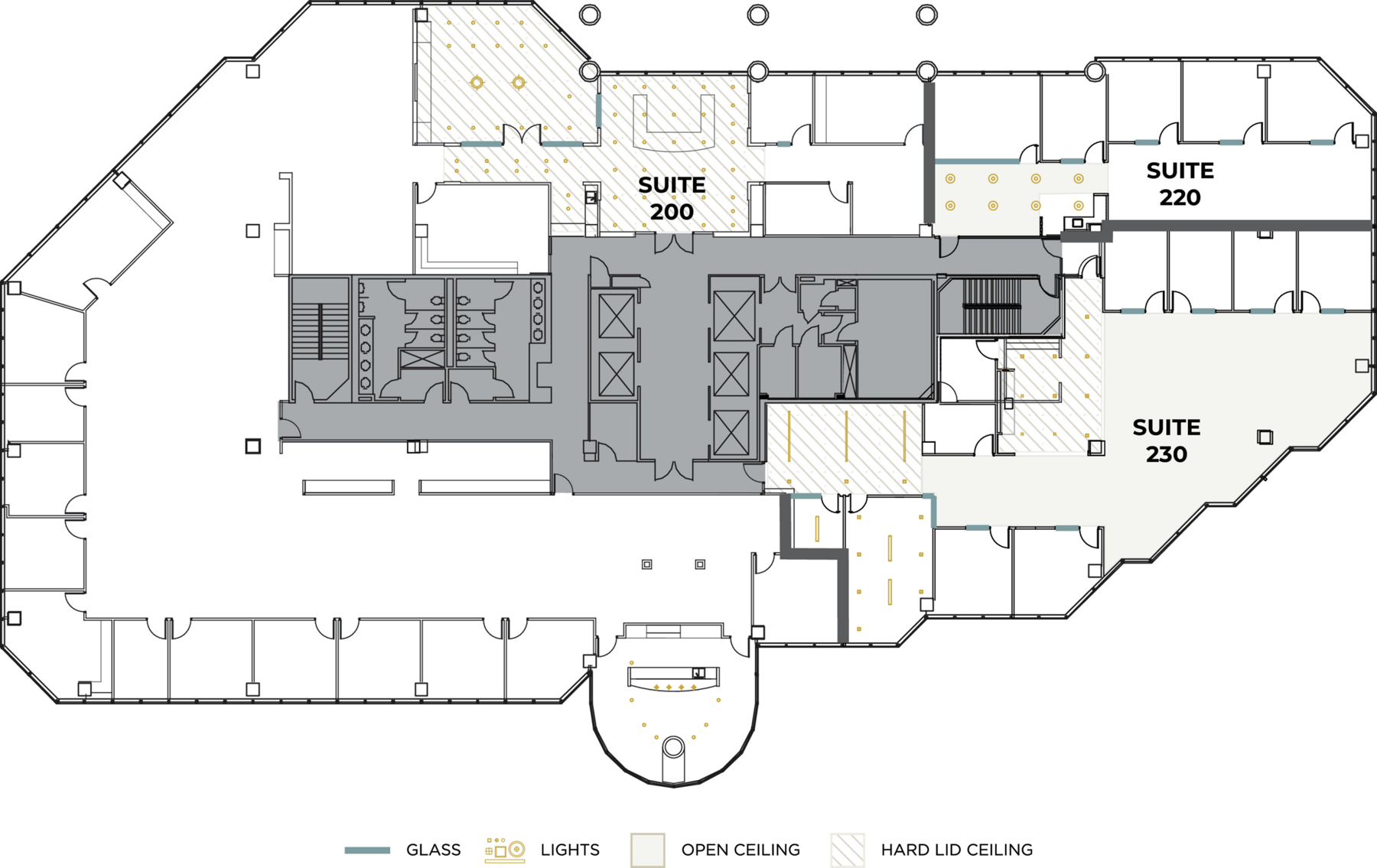
Suite 230
18400 Von Karman Avenue | Irvine, CA
Irvine Towers®
- Price Contact Us
- Total Size 4,836 sqft
-
Status
Under Construction,
Available 3.15.2026
Drive progress in a premium corner suite, offering upgraded design, an open ceiling and specialty lighting for an environment of elevated performance.





