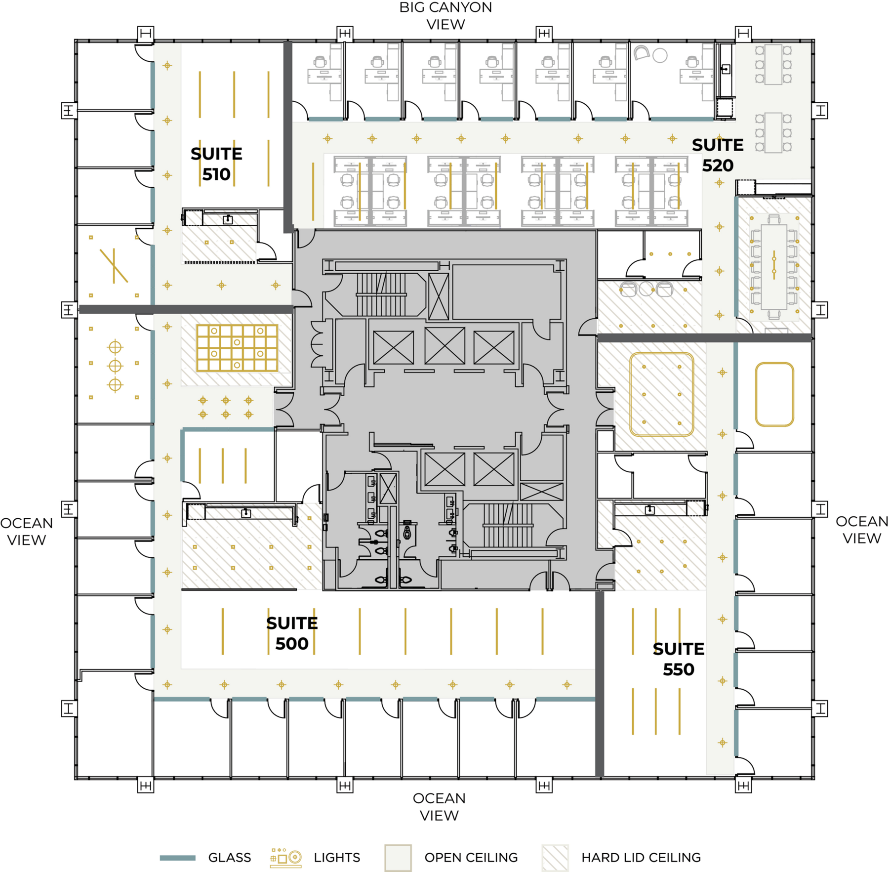
Suite 550
660 Newport Center Drive | Newport Beach, CA
660 Newport Center Drive
- Price Contact Us
- Total Size 3,458 sqft
-
Status
Under Construction,
Available 4.1.2026
Suite 550
660 Newport Center Drive | Newport Beach, CA
660 Newport Center Drive
Suite 550
660 Newport Center Drive
660 Newport Center Drive | Newport Beach, CA
SCAN FOR PHOTOS,
SUITE & WORKPLACE
DETAILS
FEATURES
Walkable Dining & Retail
KINETIC Fitness Center
Nearby Outdoor Workspaces
Access to Conferencing
Workspace Design Made Easy
Irvine Company’s workplace strategist provides end-to-end support for space planning and furniture solutions, including access to an exclusive MillerKnoll corporate discount for significant savings.
Furniture options include:
Images are representative of Flex+ furniture offerings. Installed furniture may vary.
Private Offices
Benching Workstations
Cubicle Workstations
Conference Rooms
Lounge Furniture
Collaboration Spaces
WORKPLACE
Transform the workplace into a destination with inspiring ocean views and world-class amenities.

Build your brand in expertly designed suites with high-end finishes and furniture options.

Save on startup costs with no upfront investment, build-outs or long lead times.

Choose terms that work for you with no long-term commitment and scale across our 150+ workplaces.

Make everything easier with simplified leasing and attentive customer care every step of the way.
a commitment to excellence
Irvine Company’s long-term ownership horizon and stable market position means we continue to invest and reinvest in our thriving, sustainable communities.
Our agility, collaborative partnership, and personalized service support your growth across our expansive portfolio of 150+ workplaces.
From inspiring design and ideal locations to experience-driven amenities and time-saving conveniences, we create places that bring people together to succeed.
Sign in to save favorites, compare workspaces and view searched suites.