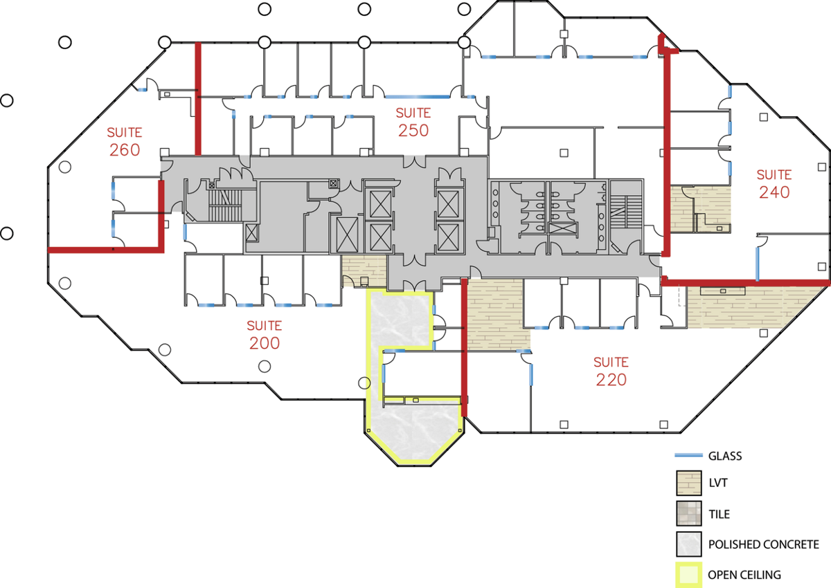
Suite 220
18500 Von Karman Avenue | Irvine, CA
Irvine Towers®
- Total Size 3,857 sqft
- Team Size 18-22 people
- Status Currently Leased
This brand new corner suite with modern finishes has plenty to offer — space for meetings, independent work and collaboration as well as access to the wealth of on-site conveniences located across Irvine Towers.





