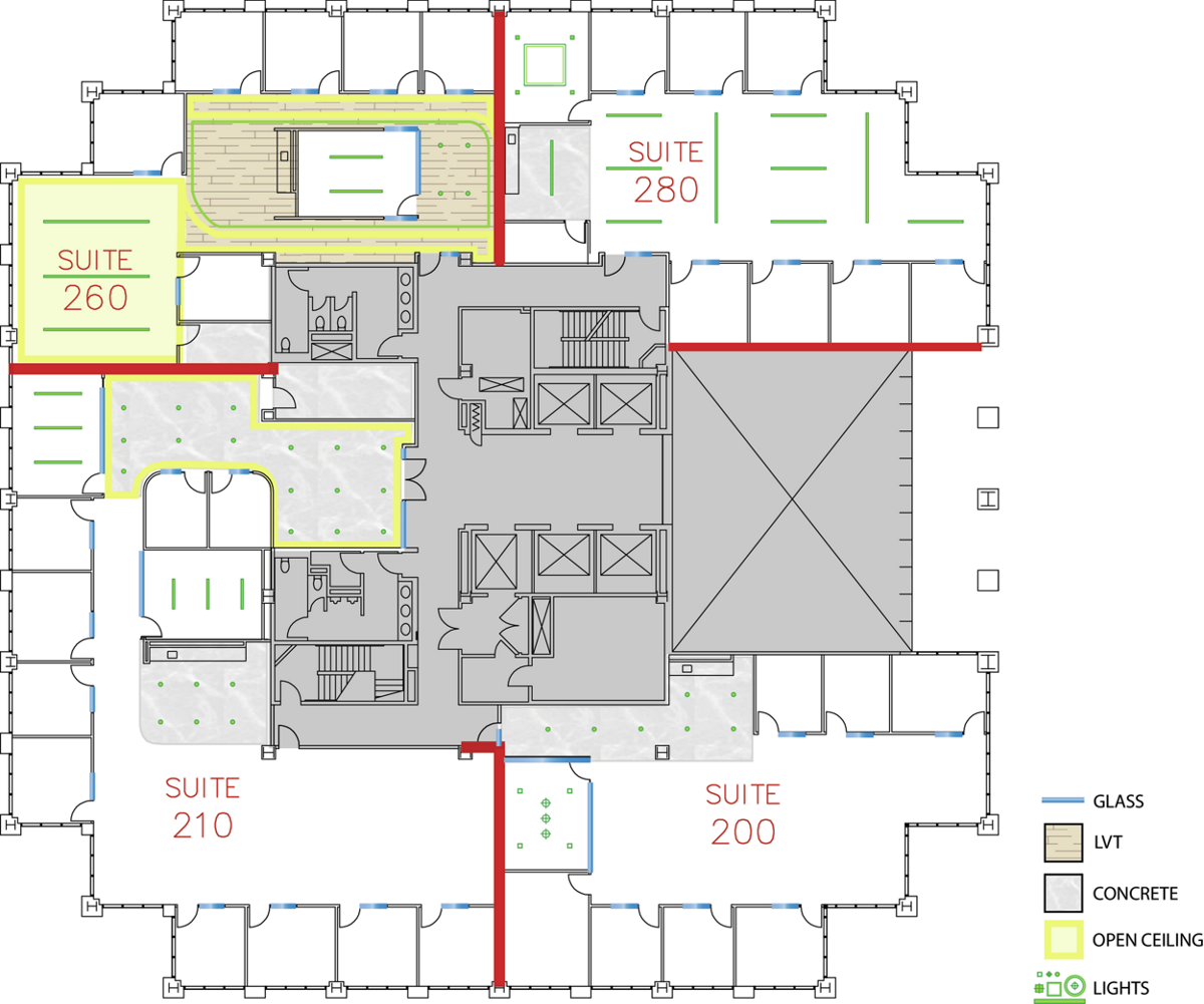
Suite 260
1 Park Plaza | Irvine, CA
Jamboree Center
- Total Size 3,413 sqft
- Team Size 16-20 people
- Status Currently Leased
Collaboration and productivity thrive in this new suite with a central meeting room and break area, flexible open floor space, six private perimeter offices and access to Jamboree Center’s extensive on-site amenities.




