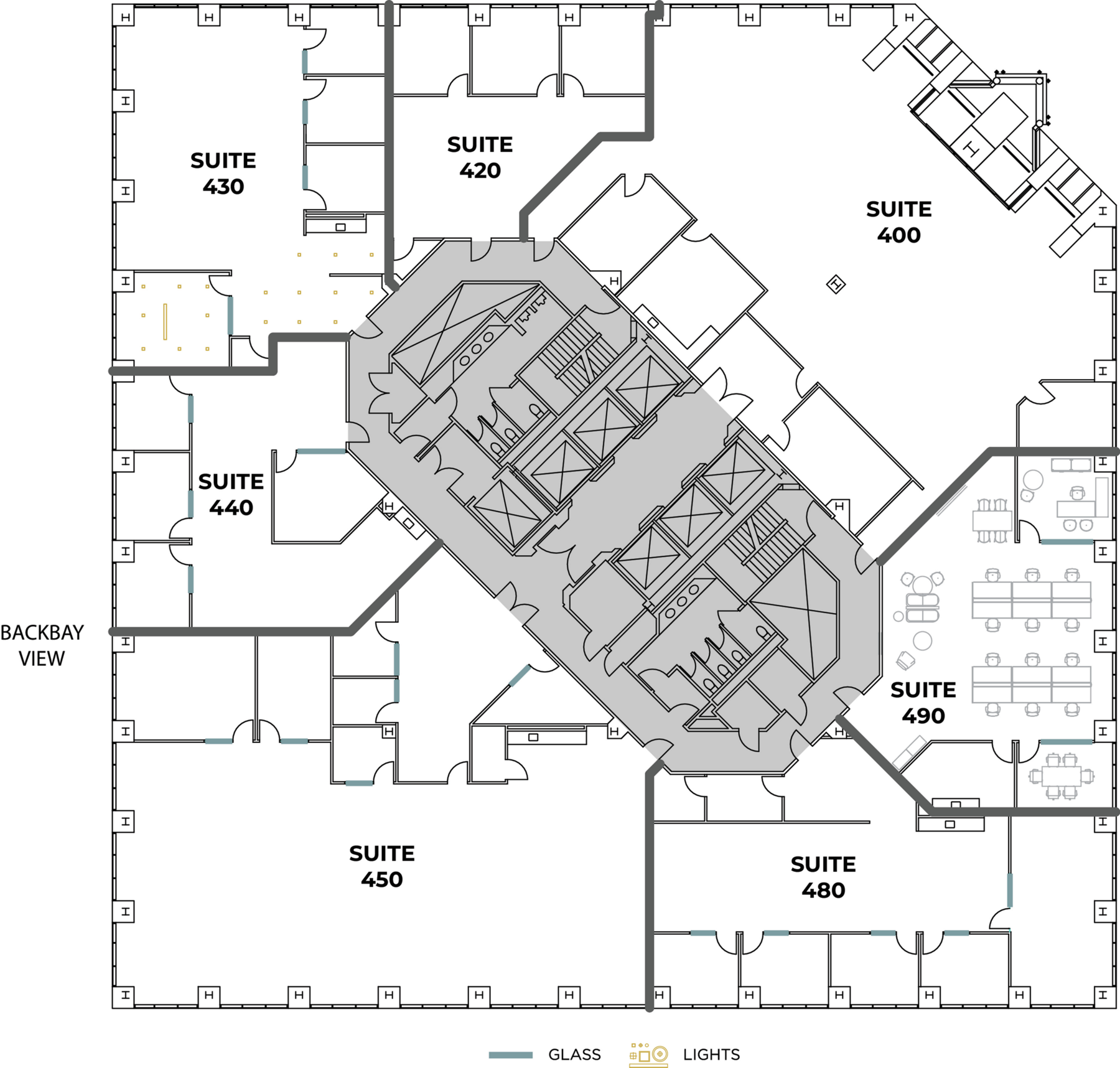
Suite 430
19800 MacArthur Boulevard | Irvine, CA
Newport Gateway
- Total Size 2,599 sqft
- Team Size 12-14 people
- Status Currently Leased
This all new corner suite has ample room for 12 to 14 employees with three private offices, a meeting room, flexible open floor space and a break area. Noteworthy features include modern lights, floor-to-ceiling windows and glass doors throughout.




