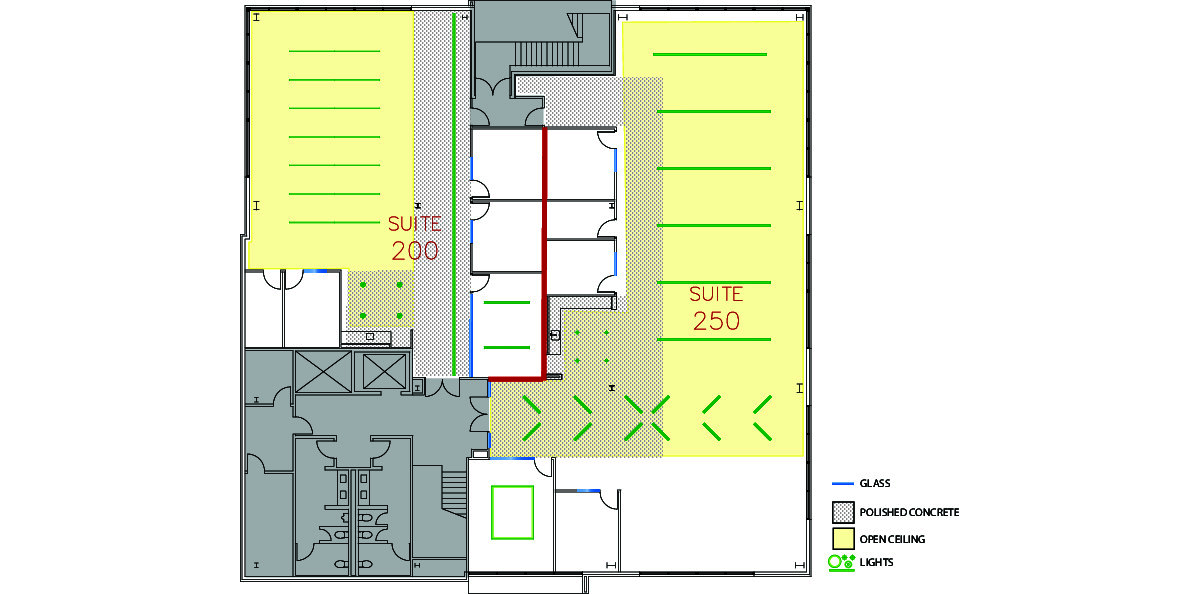
Suite 250
240 Progress | Irvine, CA
Innovation Office Park
- Total Size 6,469 sqft
- Team Size 28-36 people
- Status Currently Leased
This corner office features operable windows for abundant natural light and fresh air, polished concrete floors, an open ceiling and modern finishes. Teams can access 24 acres of open space, on-site dining and a private indoor/outdoor fitness center.




