Exterior - Corporate Plaza - 1200 Newport Center Drive  Newport Beach, CA 92660

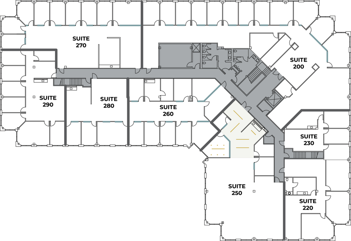
Suite 260

1200 Newport Center Drive | Newport Beach, CA

Corporate Plaza

  • Total Size 2,951 sqft
  • Team Size 14-16 people
  • Status Currently Leased

This spacious suite boasts floor-to-ceiling views from perimeter private offices, enhancing the modern workspace’s premium design. Plus, a collection of on-site lifestyle amenities set your team up for success.

floor plan A space for growing teams

  • Team Size 14-16 people
  • Total Size 2,951 sqft
  • 6
    Private
    Offices
  • 3
    Workstations
  • 2
    Meeting
    Rooms
  • 1
    Break
    Area

FEATURES

more than a workplace

Walkable Dining & Retail

Walkable Dining & Retail

Nearby KINETIC Fitness Center

Nearby KINETIC Fitness Center

Nearby Outdoor Workspaces

Nearby Outdoor Workspaces

Access to Conferencing

Access to Conferencing

Workspace Design Made Easy

Furnish Your Space Faster

Irvine Company’s workplace strategist provides end-to-end support for space planning and furniture solutions, including access to an exclusive MillerKnoll corporate discount for significant savings.

Furniture options include:

  • Height adjustable desks
  • Cubicle workstations
  • Benching workstations
  • Conference tables and chairs
  • A range of options for reception, break and collaboration areas

Images are representative of Flex+ furniture offerings. Installed furniture may vary.

Furniture Lookbook

Private Offices

Private Offices

Benching Workstations

Benching Workstations

Cubicle Workstations

Cubicle Workstations

Conference Rooms

Conference Rooms

Lounge Furniture

Lounge Furniture

Collaboration Spaces

Collaboration Spaces

why flex+

Premium Workspace

Build your brand in expertly designed suites with high-end finishes and furniture options.

Move-In Ready

Save on startup costs with no upfront investment, build-outs or long lead times.

Flexible Lease Terms

Choose terms that work for you with no long-term commitment and scale across our 150+ workplaces.

Personalized Support

Make everything easier with simplified leasing and attentive customer care every step of the way.

a commitment to excellence

about Irvine Company

industry-leading financial stability

Irvine Company’s long-term ownership horizon and stable market position means we continue to invest and reinvest in our thriving, sustainable communities.

partners in success

Our agility, collaborative partnership, and personalized service support your growth across our expansive portfolio of 150+ workplaces.

always exceptional

From inspiring design and ideal locations to experience-driven amenities and time-saving conveniences, we create places that bring people together to succeed.

Learn More