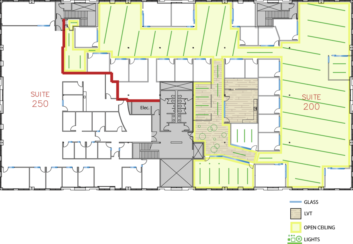
Suite 250
330 Commerce | Irvine, CA
Market Place Center
- Total Size 9,319 sqft
- Team Size 42-54 people
- Status Currently Leased
Suite 250 is a spacious workspace with windowlines offering ample natural light plus convenient access to Market Place Center’s in-demand on-campus amenities and nearby conveniences.





