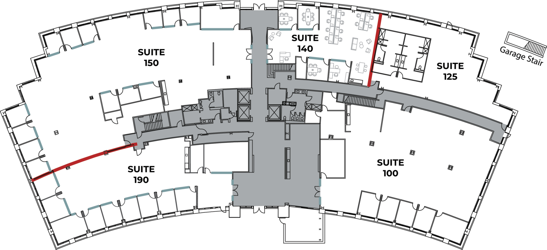
Suite 140
12544 High Bluff Drive | San Diego, CA
One Del Mar
- Total Size 2,699 sqft
- Team Size 12-16 people
- Status Currently Leased
Improve your competitive edge in a premium workplace with exceptional amenities. This ground-floor suite is divided into private offices, a large open area and a kitchen, offering the perfect set up for creative companies.




